7泊8日のグローバル基準で
暮らすように楽しむバリの休日
ShareLuxe Bali Tuka Terrace
欧米ではバカンスと言えば、通常一週間(7泊8日)がベーシックな単位と言われています。これは滞在型の休暇では必要最低限度な時間。シェアグループが提供するブランド「ShareLuxe」は、そんな観点から日本で初めてグローバルな休暇単位を取り入れた、日本発のタイムシェア型セカンドハウスです。この「ShareLuxe」については、昨年末に同コーナーで、京都・新町の「ShareLuxe京都 兆・新町」をご紹介しているので、すでにご存知の方も多いはず。
コンドミニアムとして、または別荘として、所有&居住できる「ShareLuxe」。購入したタイムシェアの権利は、世界約2500カ所にあるエクスチェンジ加盟のリゾートホテルで適用され、いつでも権利を交換できるというのも大きな特長です。
農村地帯に佇む
非日常のパラダイス
今回ご紹介するのは、バリ島南西部チャングーにたたずむ「BALI-TukaTerrace」。緑豊かな農村地帯という立地に温暖な気候が相まって、ここにしかない非日常の南国暮らしが味わえます。
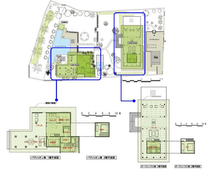
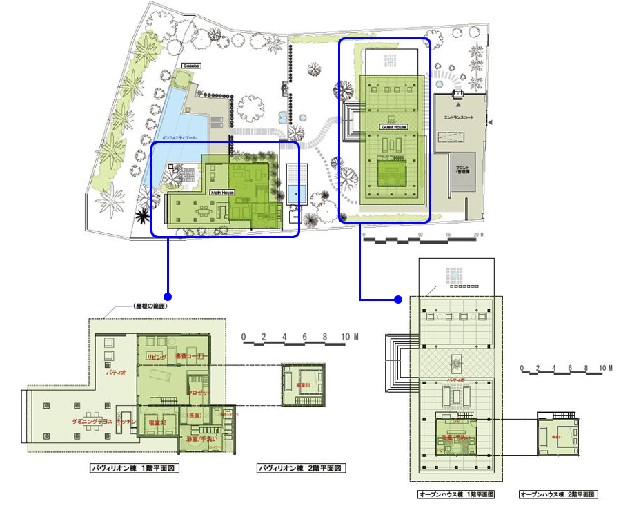
総面積約700坪の敷地内には、中庭、インフィニティプール、バレ(東屋)などがあり、それらを囲うように建物が2棟建っています。大自然の優しい風がオープンテラスを通り抜け、庭先には植物や樹々など色彩も豊かに広がる贅沢なロケーション。
部屋には、広いリビングはもちろん、浴室やゆったりと寛げる寝室も完備されていて、心も身体もしっかり癒してくれそう。滞在中は常駐スタッフ(日本語可)が敷地や建物をコンスタントに見回り、セキュリティ面も含めて、居心地のいいスティを約束してくれます。
大切なパートナーとのんびり過ごすもよし、仲間を呼んでスペシャルな休暇を過ごしてみるもよし。あなただけのわがままな使い方でお楽しみいただけるのも「ShareLuxe」ならではの醍醐味。
近隣には地元食材の市場から、オーストラリア資本の高級スーパーまでもあり、閑静な農村地帯にありながら、滞在中の不便さを感じさせない環境が魅力的。また、周辺のスミニャックやクロボカン、デンパサールという市街地には、ファッションやグルメなど、人気ショップがあり、夕日で有名なタナロットやチャングー・ビーチなどの観光スポットもほど近い場所にあります。
今後の「ShareLuxe」はアジア・パシフィックを中心に積極的に展開していくとのこと。この「BALI-TukaTerrace」もまた、そうしたアジア戦略の一環として考えられた本格ヴィラなのです。
| 施設概要 | |
|
所在地 |
Banjar Tuka, Desa Delung, Kecamantan Kuta Utara Kabupaten Bandung (Denpasar), Bali, Indonesia
|
|
敷地面積 |
2,325㎡(703.3坪)
|
|
規模および建物面積 |
ロングハウス棟:床面積199.56㎡(ピロティ140.84㎡含む) パヴィリオン棟:床面積158.62㎡(ピロティ48.2㎡含む)/ベッドルーム×3(全室バスルーム(orシャワー)付・LDK
|
|
宿泊定員数 |
7名
|
|
販売金額 |
要問い合わせ
|
TUKA TERRACE物件平面図
京都のシェアリュクスはコチラ
古都の新たな滞在スタイルが誕生!京町家のタイムシェア&ホテルコンドミニアム
ShareLuxe京都 兆・新町/上七軒
シェアリュクス公式サイト
http://www.shareluxe.com/
お問い合わせ
ファウストA.G.運営事務局 シェアリュクス係
info@faust-ag.jp
※シェアリュクスの日本窓口をご紹介させていただきます。氏名、性別、年齢、 電話番号を明記の上、メールにてお問い合わせください。
Text:Faust.A.G
2011/05/12
Travel
-
“移動”せずに異国を巡るという贅沢
クリス...
2013/02/21 -
バリの神秘を体現する
リゾートと熱帯に恋した建築家
アマンダリ/ウブド・バリ...
2012/12/13 -
スリランカ、熱帯建築家ジェフリー・バワの原点を旅する
2012/11/15 -
プーケットのその先へ
シックスセンシズ・ヤオノイの休日
Six Senses...
2012/09/20 -
Dubai Travel # 3
灼熱の国のホスピタリティ
Shangri-...
2012/08/09 -
創業50周年を迎えた伝説のリゾート
ここからバリは始まった
タンジュンサリ/...
2012/08/09 -
Dubai Travel # 2
砂漠の中のアラビアン・リゾート
One&...
2012/07/19 -
名湯に癒され、庭園を愛でる
宮城・秋保温泉での極上ステイ
2012/07/19 -
Dubai Travel #1
砂漠が求めるのはビッグ・ハート!
肌と心を焦...
2012/07/05 -
躍進の香港ビジネストリップは
先進エグゼクティブホテル&エアで〈後編〉
CA...
2012/04/26 -
躍進の香港ビジネストリップは
先進エグゼクティブホテル&エアで〈前編〉
Is...
2012/04/12 -
Journey to Eastern Cape 3
至福の天空ピクニックでサフ...
2012/01/26 -
Journey to Eastern Cape 2
冒険の連続に浸る!
大自...
2011/12/22 -
Journey to Eastern Cape 1
憧れのビッグファイブに会い...
2011/11/10 -
恐竜の生き残り?!
コモドドラゴンに出会うインドネシアの旅
AMANWANA...
2011/09/01 -
氷に閉ざされた自然の地をフライト
今こそ100年目の南極点へ
TOUR OF...
2011/08/18 -
目覚まし時計は象の足音!?
アフリカ・サファリキャンプへ行こう
WILDER...
2011/07/21 -
リーディングホテルだけの
プレミアムな会員制サービスが確立!
THE LEA...
2011/07/07 -
至福の静寂に包まれて過ごす
森林セラピーの新拠点
野尻湖ホテル エルボスコ
2011/06/16 -
港町神戸の日本最古のホテルが
バーニーズ ニューヨークとコラボ!?
Barn...
2011/06/09 -
目指すはアマゾン奥地!
「船上の5ツ星ホテル」で探検の船旅へ
AQUA EX...
2011/06/09 -
パプアニューギニア
冒険心溢れるエコロッジを旅する
trans niugin...
2011/06/02 -
7泊8日のグローバル基準で
暮らすように楽しむバリの休日
ShareLuxe...
2011/05/19 -
ザルツブルクの今
異彩を放つ食と芸術の空間
Red Bull Hangar-...
2011/05/19 -
神々が宿る神秘の島、バリを舞台に
あなただけのスペシャルなアマンを
Aman...
2011/05/12 -
極寒の大自然をラグジュアリーに満喫!
「北極クルーズ」という未知なる旅へ
S...
2011/05/12 -
王様所有のリヤドで過ごす
ラグジュアリー&ワイルドなマラケシュバカンス
RO...
2011/04/28 -
氷上の100キロオーバー・ドライブ!
世界一のスノーモビル・ワールドへ
カナ...
2011/03/24 -
オマーン~「アラビアンナイト」の砂漠へ Al Raha Tourist Cam...
2011/01/27 -
クロアチア現地探訪レポート 太陽と大地のおもてなし 「クロアチアワイン」の誘...
2011/01/27 -
古都の新たな滞在スタイルが誕生!
京町家のタイムシェア&ホテルコンドミニアム
...
2010/12/16 -
タンザニアの世界遺産で遭遇する
究極のサファリとラグジュアリーロッジ
シンギ...
2010/11/11 -
エクストリーム・ランナーの聖地!?
超絶!南極マラソンツアー申し込み受付中
2010/07/29 -
世界自然遺産・屋久島に誕生!
大自然を全身で享受するオーベルジュ
2010/05/20 -
世界9000ヶ所超のリゾートに宿泊可能!
ワイキキから始まるヒルトン流タイムシ...
2010/05/13 -
リゾート不動産×ホテル!
2つの顔を持つトランプタワー・ワイキキの...
2010/05/06 -
スパもジムも備えた、銀河のスイートルーム!?
宇宙リゾート計画が進行中
&n...
2010/05/06 -
ジャック・ガルシアの現代的「エキゾチシズム」! リニューアルオープンした、マラ...
2010/02/18 -
蝋燭と満天の星
砂漠のオアシスにある究極のエコホテル
2010/01/28 -
土日でカジノ腕試しにひと飛び!?
ソウル「セブンラック」がリニューアルオープン
2009/11/12 -
ビル・フィッシングとゴルフを満喫する
ハワイ島寛ぎのタイムシェア
2009/11/12 -
気ままなゴルフとコミュニティライフを満喫
FUTTSU BRISTOL HIL...
2009/10/29 -
サハラのど真ん中でのバカンス
大自然のスリルとラグジュアリーの共存
&nbs...
2009/09/10 -
テーブルごと上空へ浮遊!
驚愕の“ディナー・イン・ザ・スカイ&ld...
2009/07/30 -
急激Gとエンジンの咆哮を体感!
驚異の超リアル・シミュレーションカー
2009/06/25 -
厳寒の大自然を体感する
カナダのワイルドリゾート
2009/06/11 -
自然を守り、共生する
伊勢志摩の突端に佇む“嵐を観る宿&rdquo...
2009/05/28 -
5千万ドルの一大リニューアル!
類比ないリゾートがハワイ・ワイレア島に誕生
2009/05/21 -
男が羽根を休めるにふさわしい
アルマーニの美学が凝縮したスイート
2009/04/09 -
ドバイで42.195㎞
狙うは世界新で125万ドル!?
2009/02/19 -
“走る文化遺産”で巡る
アフリカ大陸、縦横無尽
2009/01/29 -
キューバに行くならタバコ収穫期の2月
シガー愛好家が町中で美酒美煙三昧!
2009/01/15 -
「行き先は花に聞いてくれ」
南アの砂漠に出現する神秘の花畑を追う旅へ
2008/12/18 -
洞窟探検、象トレッキング、シーカヤック
男子ゴコロを刺激するタイ・ステイ
2008/11/27 -
われらが地球は宇宙旅行ブーム
結婚式まで無重力!?
2008/10/02

















